298 East Coast Road, Forrest Hill, North Shore

5 Bed 4 Bath 2 Garage

The project is located in 41 Walter st Takapuna, facing the Sky tower and the Northshore Bridge, with a beautiful sea view and perfect location for the full score school district.

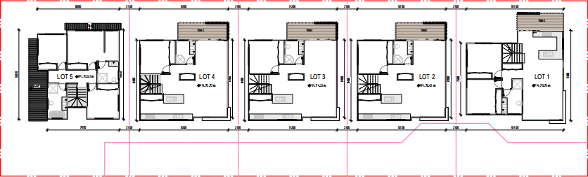
This project consists of three sets, each with an indoor area of 300-320 square meters, consisting of five bedrooms, four bathrooms, three living rooms, and two garages. The entire set of German furniture (with elevators available) has permanent property rights, Freehold, and is expected to be completed by the end of 2025

Property details
Building: 300m²-320m²
Bedrooms: 5
Garaging: 2
Bathrooms: 4
Loading...